Leave a Message

Thank you for your message. I will be in touch with you shortly.

Property Description

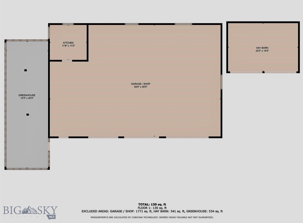
Nestled on six acres just outside Bozeman city limits, this horse property offers an idyllic blend of beauty and incredible views. Designed with an open floor plan, the home features a vaulted great room with wrap-around windows, offering natural light and stunning scenery. Main floor features dining room, kitchen and living areas as well as 3 bedrooms including the primary suite. The daylight lower level features 2 more bedrooms, a full bath, family room, additional storage areas and laundry room. Many recent updates including interior paint and new carpet throughout. Several garden spots with raspberry bushes, apple and cherry trees and asparagus beds. Additional entry to the property via Meadow Lane for ease of access to the heated shop and horse facilities. The heated shop has space for a workshop, vehicles with an attached greenhouse and hay barn. The perimeter of the property is newly fenced, ready to accommodate animals of your choosing. Experience true country living with the convenience of city amenities just a short drive away. A rare find! Watch the video for a virtual tour through the entire property.

Overview

Property Status
Sold
Lot Size
6.07 Acres
MLS ID
392888
Property Type
Residential
Year Built
1964

Features & Amenities

Total Area
3,266 Sq.Ft.
Architecture Styles
Ranch
Water Frontage
None
View Description
Meadow, Mountain(s), Trees/Woods
Stories
1
Garage Spaces
5.0
Water Source
Well
Utilites
Electricity Available, Natural Gas Available, Phone Available, Septic Available, Water Available
Roof
Metal
Lot Features
Lawn, Landscaped
Parking
Attached, Detached, Garage
Heat Type
Baseboard, Wood
Air Conditioning
Ceiling Fan(s)
Laundry Room
In Basement, Laundry Room
Fireplace
Basement, Wood Burning
Appliances
Built-In Oven, Cooktop, Double Oven, Dryer, Dishwasher, Refrigerator
Other Interior Features
Fireplace, Vaulted Ceiling(s), Main Level Primary
Sewer
Septic Tank
Other Exterior Features
Blacktop Driveway, Garden, Landscaping, Play Structure
Price Upon Request

Downloads

805 Bozeman Trail Road

Schedule a Tour

I would love to help you see this beautiful home! As a full-service brokerage, I can help you tour. Please submit an offer, and answer questions about the buying process.

Thank you

for your interest in 805 Bozeman Trail Road, Bozeman, MT 59715

805 Bozeman Trail Road
Navigate

I'm Interested In

805 Bozeman Trail Road

or
  • CallEverdawn Charles

    License #RBS-RRE-25260

    (406) 600-3225
  • Follow Me On Instagram